Description
Retail unit located in the beautiful Craven Court Shopping Centre situated adjacent to Skipton's popular High Street. Available by way of a new lease and offering potential for a variety of retail uses.
LOCATION
Skipton has a busy town centre and is famous for its four days a week market which was voted 'market day out in Yorkshire' by Yorkshire Post readers. Popular with tourists and day-trippers because of its Castle and local walks, it is also within 10 minute drive of the Yorkshire Dales National Park and the popular holiday destinations of Malham, Grassington and Bolton Abbey. Craven Court comprises an exclusive shopping centre of 28 stores situated just off Skipton's High Street, with current occupiers including H. Samuel, Joules, Crew Clothing and Bodycare as well as local jewellers, gift shops and cafes.
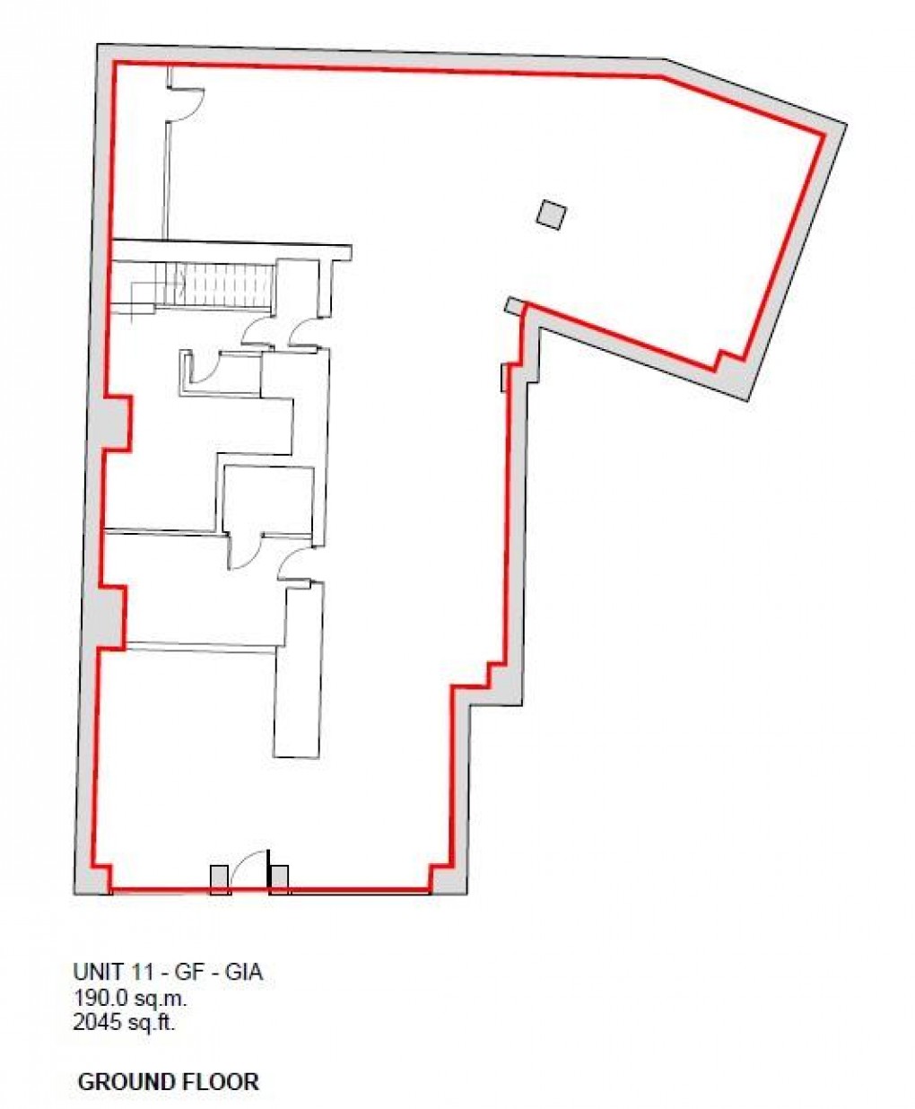
ACCOMODATION
Unit 11 in Craven Court comprises a ground floor retail unit. Internal floor areas:
Ground Floor Sales
Office
Store
Staff Kitchen
WC
Total Gross Internal area 190 sq m (2,045 sq ft)
Measured in accordance with the RICS Code of Measuring Practice (6th Edition). All measurements are approximate.
TERMS
The retail unit is available by way of a new effectively fully repairing and insuring lease for a term of years to be agreed.
ENERGY PERFORMANCE RATING
The property has an energy performance rating of B (43)
BUSINESS RATES
The property currently has a rateable value of £27,750 (2023 list - information taken from https://www.tax.service.gov.uk/business-rates-find/valuations/start/137652105). The property may be eligible for full small business rates relief and interested parties are advised to obtain more information by visiting www.voa.gov.uk or calling North Yorkshire Council.
VAT
The rent, service charge and building insurance charge will be subject to VAT at the prevailing rate. All figures quoted are exclusive of VAT
SERVICE CHARGE
The new tenant will be required to pay a fair proportion towards buildings insurance and also a service charge as a contribution towards the running and maintenance of the common areas. A full service charge pack is available upon request.
VIEWING
Strictly by appointment through the agents Carling Jones - contact a member of the team at the Skipton Office on 01756 799163
SERVICES
We have not been able to test the equipment, services or installations in the property (including heating and hot water systems) and recommend that prospective purchasers and tenants arrange for a qualified person to check the relevant installations before entering into any commitment
AGENT'S NOTE & DISCLAIMER
These details do not form part of an offer or contract. They are intended to give a fair description of the property, but neither the vendor nor Carling Jones accept responsibility for any errors it may contain. Purchasers or prospective tenants should satisfy themselves by inspecting the property
Floorplan
To discuss this property call:
Market your property
with Carling Jones
Book a market appraisal for your property today. Our virtual options are still available if you prefer.
