Description
- Popular Location
- Close Amenities
- Detached
- Sitting Room
- Dining Kitchen
- Three Bedrooms
- Two Bathrooms
- Separate Study/Play Room
- Gardens
- Garage and Parking
Nestled in the charming area of Lowfield Crescent, Silsden, this delightful detached house offers a perfect blend of comfort and convenience. With three well-proportioned bedrooms, this property is ideal for families or those seeking extra space. The house features a welcoming family home with parking, garden and garage.
Silsden is a popular and thriving village with excellent local facilities including village shops, supermarket, two primary schools, churches, public houses, eateries and a golf club. Situated midway between Skipton, Ilkley and Keighley it is an ideal base for the Aire Valley commuter with Steeton & Silsden railway station nearby, offering regular services to Skipton and Bradford/Leeds, with connecting trains through to London Kings Cross.
With gas-fired central heating and UPVC double glazed windows, the accommodation is described in brief below with approximate room sizes:-
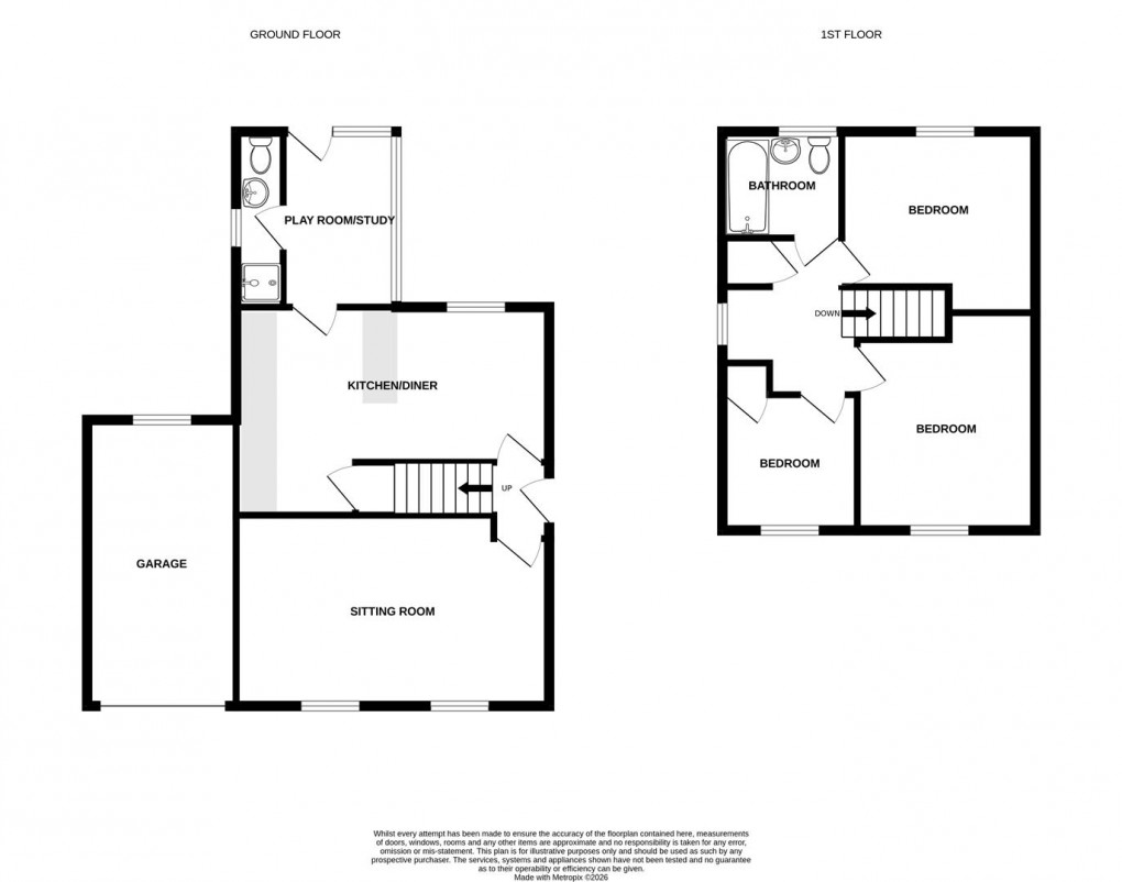
Ground Floor
Entrance Hall
Entered through a UPVC door.
Sitting Room (5.41m x 3.33m max)
Large reception room with decorative fireplace.
Dining Kitchen (5.41m x 3.53m max)
Range of wall and base units with laminate worktop, sink unit and tiled splashback. Electric cooker. Extractor hood. Useful understairs cupboard, spot lighting and two radiators.
Study/Play Room (3.05m x 1.96m)
Door leading to the garden. Radiator.
Shower Room
Three piece suite comprising; low suite wc, hand basin and shower cubicle. Extractor fan, part tiled walls, vinyl flooring and spot lighting.
First Floor
Landing
Useful storage cupboard.
Bedroom One (3.35m x 2.92m)
Double room with built-in wardrobe.
Bedroom Two (3.33m x 2.64m)
Double room with built-in wardrobe.
Bedroom Three (2.39m x 2.34m)
Single room.
Bathroom
Three piece suite comprising; low suite wc, hand basin and bath with electric shower over. Fully tiled walls, vinyl flooring and extractor fan.
Outside
To the front there is a private driveway and a low maintenance pebbled area.
To the rear of the property there is a paved seating area, lawn and mature planted borders.
Garage
With up-and-over door.
Council Tax & Tenure
Tenure: Freehold
Council Tax Band: C
Services
We have not been able to test the equipment, services or installations in the property (including heating and hot water systems) and recommend that prospective purchasers arrange for a qualified person to check the relevant installations before entering into any commitment
Agents Note & Disclaimer
These details do not form part of an offer or contract. They are intended to give a fair description of the property, but neither the vendor nor Carling Jones accept responsibility for any errors it may contain. Purchasers or prospective tenants should satisfy themselves by inspecting the property
Anti Money Laundering Regulations
To enable us to comply with the expanded Money Laundering Regulations we are required to obtain proof of how the property purchase is to be financed as well as identification from all prospective buyers. Buyers are asked to please assist with this so that there is no delay in agreeing a sale. The cost payable by the successful buyer(s) for this is £12 (inclusive of VAT) per named buyer and is paid to the firm that administers the money laundering ID checks, Movebutler. Please note the property will not be marked as sold subject to contract until appropriate identification has been provided and all AML checks are completed.
Viewings
Strictly by appointment through the agents Carling Jones - contact a member of the team at the Skipton Office on 01756 799163
Floorplan
EPC
To discuss this property call:
Market your property
with Carling Jones
Book a market appraisal for your property today. Our virtual options are still available if you prefer.
