Description
- Contemporary Fixtures & Fittings
- Large Deck Area
- Walking Distance to Skipton
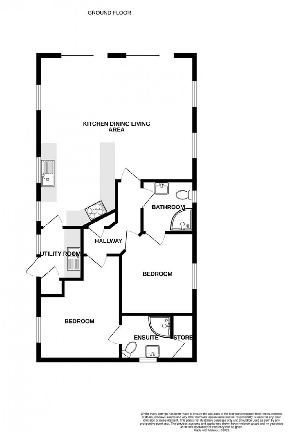
- Open Plan Living Kitchen
- Two Double Bedrooms
- Two Bathrooms
- On Site Restaraunt
- Parking
SITE FEES PAID UNTIL 2027! Do not miss viewing this stunning 40 x 20ft Lodge located in a quiet, gated area situated at Tarn House Holiday Park where peace and tranquillity abound and yet just a stone's throw from the historic market town of Skipton and the Yorkshire Dales. Immaculate stunning Lodge, located at 12 Balmoral with large south facing decking. Located at the end of the road, this lodge provides high quality fixtures and fittings to the kitchen and bathrooms, spacious open plan living with patio doors to the decked area and two double bedrooms one with en suite. Tarn House features beautiful scenery, bar, restaurant and a children's playground. The site is open 10 months of the year and is the perfect escape for people of all ages.
Season Dates & Facilities
Season dates for owners are from 1st March to the 10th January.
At Tarn House there is a licenced bar, outdoor beer garden, children's play park, sports court and the country store.
Services
We have not been able to test the equipment, services or installations in the property (including heating and hot water systems) and recommend that prospective purchasers arrange for a qualified person to check the relevant installations before entering into any commitment
Agents Note & Disclaimer
These details do not form part of an offer or contract. They are intended to give a fair description of the property, but neither the vendor nor Carling Jones accept responsibility for any errors it may contain. Purchasers or prospective tenants should satisfy themselves by inspecting the property
Anti Money Laundering Regulations
To enable us to comply with the expanded Money Laundering Regulations we are required to obtain proof of how the property purchase is to be financed as well as identification from all prospective buyers. Buyers are asked to please assist with this so that there is no delay in agreeing a sale. The cost payable by the successful buyer(s) for this is £12 (inclusive of VAT) per named buyer and is paid to the firm that administers the money laundering ID checks, Movebutler. Please note the property will not be marked as sold subject to contract until appropriate identification has been provided and all AML checks are completed.
Viewings
Strictly by appointment through the agents Carling Jones - contact a member of the team at the Skipton Office on 01756 799163
Floorplan
To discuss this property call:
Market your property
with Carling Jones
Book a market appraisal for your property today. Our virtual options are still available if you prefer.
