Description
- Close to Amenities
- Walking Distance to Schools
- Semi-Detached
- Dining Kitchen
- Sitting Room
- Office
- Four Bedrooms
- Two Bathrooms
- Garden
- Parking
Beautifully presented four bedroom extended semi-detached home in a popular residential area within Skipton. Perfect for a growing family, this property provides ample internal space, gardens, parking and even more space to work from home!
The historic town of Skipton provides comprehensive shopping and leisure facilities together with excellent primary and secondary schooling. Within 10 minutes drive of the Yorkshire Dales National Park, the town is close to the popular holiday destinations of Malham, Grassington and Bolton Abbey. The town's railway station has regular services to Leeds, Bradford & Lancaster/Carlisle and a daily service direct to London Kings Cross. The major towns of East Lancashire and West Yorkshire are all within easy commutable distance.
Benefiting from UPVC sealed unit double glazing and gas central heating the property comprises very briefly:
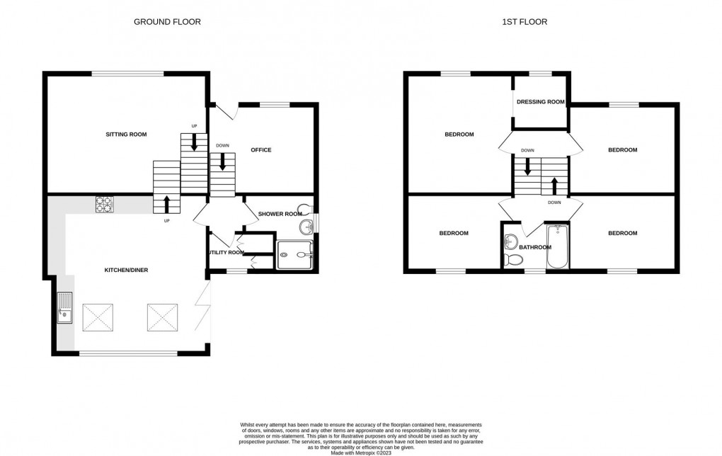
Ground Floor
Office (3.63m x 3.00m)
Accessed via composite front door with laminate flooring and radiator.
Inner Hall
Shower Room
With three piece suite comprising; hand basin, wc and walk-in shower with thermostatic rainfall shower over. Tiled walls, LVT flooring, spotlighting, extractor fan and heated towel rail.
Utility Room
With plumbing for automatic washing machine, space for dryer, laminate flooring, extractor fan and radiator.
Dining Kitchen (5.38m x 5.33m max)
Range of gloss wall and base units with complimentary worktop, stainless steel sink unit and tiled splash back. Integrated appliances comprising; double oven/grill, fridge freezer, dishwasher and hob with extractor fan. Understairs cupboard, laminate flooring and spotlighting. Two Velux windows, two radiators and bi-folding doors leading to the garden.
Sitting Room (5.41m x 4.04m)
Spacious room with radiator and laminate flooring.
First Floor
Landing
With storage above the stairs.
Bedroom Three (3.63m x 2.49m)
Double room with laminate flooring and radiator.
Bedroom Four (2.84m x 2.59m)
Double room with laminate flooring and radiator.
Bathroom
Three piece suite comprising; wc, handing basin and bath with thermostatic shower over. Tiled walls and flooring, chrome heated towel rail, spotlighting and extractor fan.
Bedroom One (4.04m x 3.58m)
Large double room with radiator. Walk-in wardrobe/dressing room with hanging rails and shelving.
Bedroom Two (3.61m x 3.02m)
Double room with radiator.
Outside
To the front of the property there is a tarmac driveway with parking for 2+ cars.
To the rear of the property there is a raised decked area access through the bi-folding doors from the kitchen with fantastic long distance views. There is a good-sized artificial grass area. There are also two outhouses with one having electric which could be further used as an office and is currently a 'home pub'.
Council Tax & Tenure
Council tax band: C
Tenure: Freehold
Services
We have not been able to test the equipment, services or installations in the property (including heating and hot water systems) and recommend that prospective purchasers arrange for a qualified person to check the relevant installations before entering into any commitment
Anti Money Laundering Regulations
To enable us to comply with the expanded Money Laundering Regulations we are required to obtain proof of how the property purchase is to be financed as well as identification from all prospective buyers. Buyers are asked to please assist with this so that there is no delay in agreeing a sale. The cost payable by the successful buyer(s) for this is £12 (inclusive of VAT) per named buyer and is paid to the firm that administers the money laundering ID checks, Movebutler. Please note the property will not be marked as sold subject to contract until appropriate identification has been provided and all AML checks are completed.
Agents Note & Disclaimer
These details do not form part of an offer or contract. They are intended to give a fair description of the property, but neither the vendor nor Carling Jones accept responsibility for any errors it may contain. Purchasers or prospective tenants should satisfy themselves by inspecting the property
Viewings
Strictly by appointment through the agents Carling Jones - contact a member of the team at the Skipton Office on 01756 799163
Floorplan
EPC
To discuss this property call:
Market your property
with Carling Jones
Book a market appraisal for your property today. Our virtual options are still available if you prefer.
