Description
- New build property
- Price quoted for a 50% share
- Leasehold by way of a new 125 year lease
- Only a 15 minute walk from Skipton High Street
- More shared ownership properties coming soon
- Initial purchase between 25% and 75% with rent payable on the unsold equity
A brand new two bedroom semi detached house, located only a 15 minute walk from Skipton High Street, available for sale by way of a shared ownership scheme from North Yorkshire Council. The price quoted is on the basis of a 50% share of the market value being purchased, with an initial rent payable at 2.75% of the unsold equity.
DESCRIPTION
Hawbank Field comprises a new residential development constructed by Stonebridge Homes.  Plot 31 is offered by way of a shared ownership scheme from North Yorkshire Council - the purchaser will initially buy between 25% and 75% of the property, which will be determined by their financial advisor.
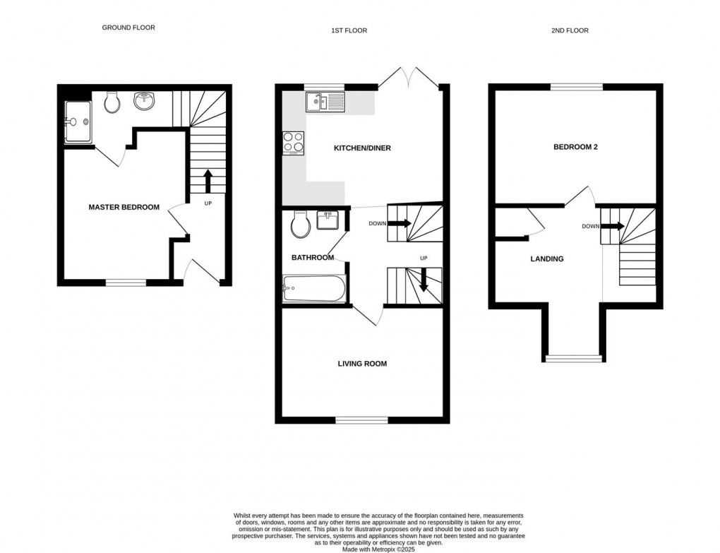
Plot 31 comprises an entrance at ground floor level with corridor leading to a double bedroom with ensuite, and staircase leading up to the first floor where there is a kitchen diner, well proportioned living room and house bathroom.  A further staircase leads up to the second floor with a spacious landing and the second double bedroom. Externally there is an enclosed lawned garden to the rear and two car parking spaces to the front.
ENTRANCE HALL
Accessed from the front door with door leading into the double bedroom and stairs leading up to the first floor landing.
DOUBLE BEDROOM (4.35m x 3.11m (max))
Double bedroom with window overlooking the front of the property. Door leads into the ensuite shower room with WC, wash hand basin and walk in shower.
FIRST FLOOR LANDING
With doors leading to the living room, house bathroom and the kitchen diner. Stairs lead up to the second floor landing.
LIVING ROOM (4.13m x 2.85m)
Window overlooking the front of the property.
KITCHEN DINER (4.12m x 2.88m)
Comprising a range of base and wall units with contrasting timber effect laminate work surfaces and stainless steel sink with mixer tap. Bosch four ring stainless steel gas hob with Bosch extractor hood over and stainless steel under counter oven. Under counter space and plumbing for a washing machine and space for a tall standing fridge freezer. Timber effect vinyl floor covering and double doors leading out to the enclosed rear garden.
HOUSE BATHROOM
Comprising a white pedestal wash hand basin with mixer tap, dual flush WC and panel bath with mixer tap. Chrome ladder style towel heater and tile effect vinyl floor covering.
SECOND FLOOR LANDING
Spacious landing with door leading into bedroom 2. Cupboard housing the Ideal Logic ESP1 35 gas combination boiler.
DOUBLE BEDROOM 2 (4.12m x 2.90m)
Double bedroom with window overlooking the rear garden.
OUTSIDE
To the front of the property there is one car parking space. To the rear is an enclosed garden.
COUNCIL TAX BAND
To be assessed.
TENURE AND SHARED OWNERSHIP
This property will be sold on a leasehold basis on a new 125 year lease.
The property is available by way of shared ownership and is only available to first time buyers, or people who used to own a home and cannot afford to buy a new one, with a combined income of less than £80,000 per annum. Priority will be given to serving military personnel and former members of the British Armed Forces discharged within the last two years. The price quoted is on the basis of a 50% share of the market value being purchased, with an initial rent payable at 2.75% of the unsold equity (reviewed annually in line with inflation).
In order to proceed with a purchase any applicant must first obtain proof from a suitable mortgage or financial advisor that they meet Homes England's eligibility criteria, including affordability criteria.
 
Please note that applicants with a local connection to Skipton will be given priority for the purchase of the homes in the first instance. Local connection is defined as: 
 Having resided in the area for 3 years out of the past 5; or 
 Having previously lived in the area for 20 years (or half that persons lifetime, minimum of 10 years); or 
 Having Immediate family who have lived in the area for five years (parents, siblings or children); or 
 Employed in the area with a company which has been established for 3 years and are employed for a minimum of 16 hours per week for 12 months
VIEWING
Strictly by appointment through the agents Carling Jones - contact a member of the team at the Skipton Office on 01756 799163
SERVICES
We have not been able to test the equipment, services or installations in the property (including heating and hot water systems) and recommend that prospective purchasers arrange for a qualified person to check the relevant installations before entering into any commitment
AGENT'S NOTE & DISCLAIMER
These details do not form part of an offer or contract. They are intended to give a fair description of the property, but neither the vendor nor Carling Jones accept responsibility for any errors it may contain. Purchasers or prospective tenants should satisfy themselves by inspecting the property. Note that all measurements within these sales particulars are approximate and are given as a guide only.
Anti Money Laundering Regulations
To enable us to comply with the expanded Money Laundering Regulations we are required to obtain proof of how the property purchase is to be financed as well as identification from all prospective buyers. Buyers are asked to please assist with this so that there is no delay in agreeing a sale. The cost payable by the successful buyer(s) for this is £12 (inclusive of VAT) per named buyer and is paid to the firm that administers the money laundering ID checks, Movebutler. Please note the property will not be marked as sold subject to contract until appropriate identification has been provided and all AML checks are completed.
Floorplan
To discuss this property call:
Market your property 
with Carling Jones
													Book a market appraisal for your property today. Our virtual options are still available if you prefer.
