Description
Well presented two bedroom apartment located in Skipton. Walking distance to all local amenities, the property is situated on the first floor and provides ample space for a single person or couple alike.
The historic town of Skipton provides comprehensive shopping and leisure facilities together with excellent primary and secondary schooling. Within 10 minutes drive of the Yorkshire Dales National Park, the town is close to the popular holiday destinations of Malham, Grassington and Bolton Abbey. The town's railway station has regular services to Leeds, Bradford & Lancaster/Carlisle and a daily service direct to London Kings Cross. The major towns of East Lancashire and West Yorkshire are all within easy commutable distance.
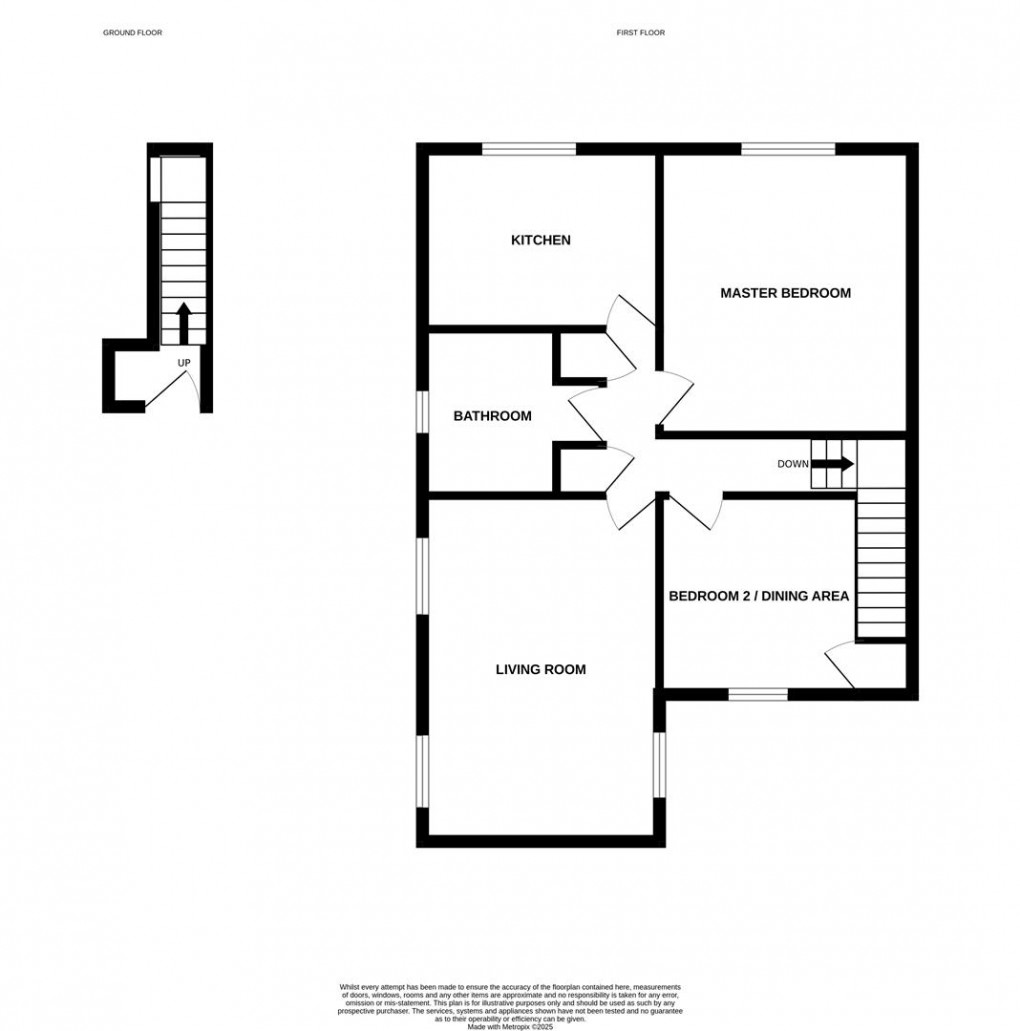
Ground Floor
Entrance Hall
Entered through UPVC door. Spotlighting.
First Floor
Landing
Two useful built-in storage cupboards. Spotlighting and radiator.
Living Room (4.88m x 3.20m)
With decorative fireplace, windows to two sides and two radiators.
Kitchen (3.18m x 2.49m)
Range of wall and base units, laminate worktop, tiled splashback and stainless steel sink unit. Electric oven. Ceramic hob with canopied extractor fan over. Plumbing for washing machine and space for fridge freezer. Spotlighting and radiator.
Bedroom One (3.86m x 3.56m)
Large double room with radiator.
Bedroom Two (3.02m x 2.74m)
Small double room with built-in wardrobe and radiator.
Bathroom
Three piece suite comprising; low suite wc, hand basin and bath with thermostatic shower over. Part tiled walls, fully tiled floor and chrome heated towel rail. Spotlighting.
Parking
There is communal parking with no allocated space.
Council Tax
Council Tax Band: B
Tenancy Information
HOLDING DEPOSITS: A holding deposit, equal to 1 weeks rent, is payable upon the start of the application. Successful Applications - any holding deposit will be offset against the initial rent and Deposit, with the agreement of the payee.
FEES PAYABLE IN ACCORDANCE WITH THE TENANT FEES ACT 2019: Additional variable charges may apply during the course of the tenancy or at the end and are detailed within the Tenancy Agreement, eg. Default of Contract - Later Payment Charge £25.00; Default of Contract - Loss of keys £25.00; Contract Variation - Admin Charge £50.00; Contract Early Termination - Admin Charge £50.00 (plus any reasonable Landlords costs, by prior agreement)
DEPOSIT: A deposit equal to 5 weeks rent (6 weeks rent, where the annual rent is great than £50,000) will be payable plus the first months rent once the references have been passed and before the tenancy begins.
OTHER INFORMATION: Carling Jones Ltd is a member of the RICS Client Money Protection Scheme. Carling Jones Ltd is a member of The Property Ombudsman Redress Scheme.
Agents Note & Disclaimer
These details do not form part of an offer or contract. They are intended to give a fair description of the property, but neither the vendor nor Carling Jones accept responsibility for any errors it may contain. Purchasers or prospective tenants should satisfy themselves by inspecting the property
Viewings
Strictly by appointment through the agents Carling Jones - contact a member of the team at the Skipton Office on 01756 799163
Floorplan

EPC
To discuss this property call:
Market your property
with Carling Jones
Book a market appraisal for your property today. Our virtual options are still available if you prefer.