Description
A traditional stone built end terrace property enjoying superb views to the rear with south facing patio/yard and three bedrooms and large family bathroom. Located only a two minute walk from Skipton Town Centre. Available November 2025.
LOCATION
The historic market town of Skipton provides comprehensive shopping and leisure facilities and is famous for its four days a week street market. Within 10 minute drive of the Yorkshire Dales National Park, the town is close to the Pennine Way and the popular holiday destinations of Malham, Grassington and Bolton Abbey. The town's railway station has regular services to Leeds and Bradford and a daily service direct to London. The major commercial towns of East Lancashire and West Yorkshire are all within easy driving distance.
DESCRIPTION
This stone built mid terrace property provides excellent accommodation throughout and benefits from upvc windows and doors, modern combination boiler and fitted kitchen. With living room, kitchen, three bedrooms, a large family bathroom and south facing rear yard.
In more detail the property comprises:
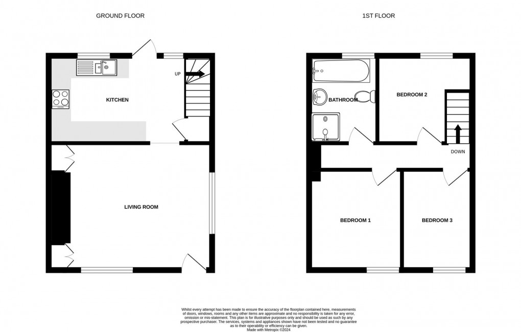
LIVING ROOM (5.06m x 3.92m (max))
Accessed via a uPVC door, with wall mounted feature fireplace and built in cupboards either side of the chimney breast. Recessed ceiling lights. Door opening leads into the kitchen.
KITCHEN (4.28m x 2.70m)
Compairsing a range of black gloss wall and base units with timber work surfaces and 1.5 bowl sink unit with mixer tap. Integrated under counter oven with four ring hob and stainless steel and glass chimney typ extractor fan. Integrated firdge freezer and space and plumbing for a washing machine. Recessed ceiling lights. Under stairs storage cupboard with wall mounted Main gas combination boiler. uPVC door leads out to the rear yard, and stairs lead up to the first floor landing.
FIRST FLOOR LANDING
With doors leading to all three bedrooms and the bathroom. Small storage cupboard.
BEDROOM 1 (3.09m x 2.78m)
Double bedroom with window overlooking Castle Street.
BEDROOM 2 (2.94m (max) x 2.73m (max))
Single bedroom with window overlooking the rear yard
BEDROOM 3 (3.08m x 2.13m)
Single bedroom with window overlooking Castle Street.
BATHROOM
Comprising a bath with mixer tap and hand shower attachment, pedestal wash hand basin, WC and glazed shower cubicle with drench head. Chrome ladder style wall heater and recessed ceiling lights.
OUTSIDE AREA
The property benefits from a south facing enclosed rear yard.
OTHER INFORMATION
Council Tax Band: B
VIEWING
Strictly by appointment through the agents Carling Jones - contact a member of the team at the Skipton Office on 01756 799163
TENANCY INFORMATION
HOLDING DEPOSITS: A holding deposit, equal to 1 weeks rent, is payable upon the start of the application. Successful Applications - any holding deposit will be offset against the initial rent and Deposit, with the agreement of the payee.
FEES PAYABLE IN ACCORDANCE WITH THE TENANT FEES ACT 2019: Additional variable charges may apply during the course of the tenancy or at the end and are detailed within the Tenancy Agreement, eg. Default of Contract - Later Payment Charge £25.00; Default of Contract - Loss of keys £25.00; Contract Variation - Admin Charge £50.00; Contract Early Termination - Admin Charge £50.00 (plus any reasonable Landlords costs, by prior agreement)
DEPOSIT: A deposit equal to 5 weeks rent (6 weeks rent, where the annual rent is great than £50,000) will be payable plus the first months rent once the references have been passed and before the tenancy begins.
OTHER INFORMATION: Carling Jones Ltd is a member of the RICS Client Money Protection Scheme. Carling Jones Ltd is a member of The Property Ombudsman Redress Scheme.
AGENT'S NOTE & DISCLAIMER
These details do not form part of an offer or contract. They are intended to give a fair description of the property, but neither the vendor nor Carling Jones accept responsibility for any errors it may contain. Purchasers or prospective tenants should satisfy themselves by inspecting the property
SORRY - NO PETS
Floorplan
EPC
To discuss this property call:
Market your property
with Carling Jones
Book a market appraisal for your property today. Our virtual options are still available if you prefer.