Description
- Popular Location
- First Floor Apartment
- Open Plan Living Kitchen
- One Bedroom
- Bathroom
- Sorry No Pets
Well presented one bedroom first floor apartment located in the popular village of Bradley. Only a short drive from Skipton Town Centre, This property provides perfect space for a young professional.
The popular village of Bradley is located only two miles to the south of Skipton, and benefits from a range of local amenities including a pub, a village shop, a primary school and a church.
The historic town of Skipton provides comprehensive shopping and leisure facilities within 10 minutes drive of the Yorkshire Dales National Park, close to the popular holiday destinations of Malham, Grassington and Bolton Abbey. Skipton's railway station has regular services to Leeds and Bradford and a daily service direct to London. The major towns of East Lancashire and West Yorkshire are all within easy commutable distance.
Entrance Hall
With private entrance and internal staircase leading to first floor.
Landing
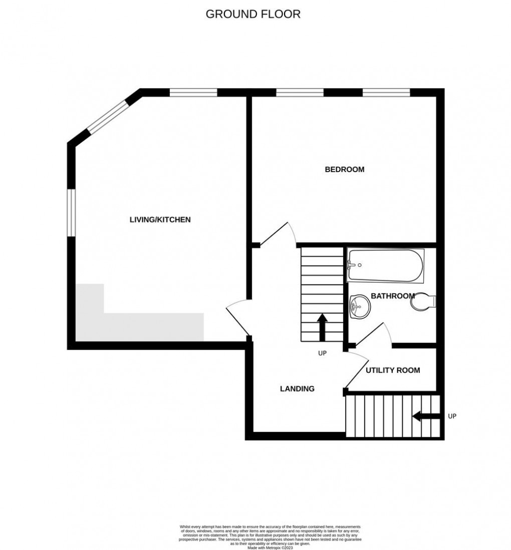
Open Plan Living Kitchen (5.36m x 3.76m max)
Range of wall and base units, laminate worktop, tiled splashback and stainless steel sink unit. Electric oven, hob and canopied extractor fan. Vinyl flooring and spotlights.
Bedroom (4.04m x 3.25m max)
Double room with spotlighting.
Utility Area
With plumbing for washing machine and vinyl flooring.
Bathroom
Three piece suite comprising; low suite wc, hand basin and bath with shower over. Part tiled walls, spotlighting and extractor fan.
Attic Room
With staircase leading up off the landing and Velux window.
Council Tax
Council Tax Band: A
Tenancy Information
HOLDING DEPOSITS: A holding deposit, equal to 1 weeks rent, is payable upon the start of the application. Successful Applications - any holding deposit will be offset against the initial rent and Deposit, with the agreement of the payee.
FEES PAYABLE IN ACCORDANCE WITH THE TENANT FEES ACT 2019: Additional variable charges may apply during the course of the tenancy or at the end and are detailed within the Tenancy Agreement, eg. Default of Contract - Later Payment Charge £25.00; Default of Contract - Loss of keys £25.00; Contract Variation - Admin Charge £50.00; Contract Early Termination - Admin Charge £50.00 (plus any reasonable Landlords costs, by prior agreement)
DEPOSIT: A deposit equal to 5 weeks rent (6 weeks rent, where the annual rent is great than £50,000) will be payable plus the first months rent once the references have been passed and before the tenancy begins.
OTHER INFORMATION: Carling Jones Ltd is a member of the RICS Client Money Protection Scheme. Carling Jones Ltd is a member of The Property Ombudsman Redress Scheme.
Agents Notes & Disclaimer
These details do not form part of an offer or contract. They are intended to give a fair description of the property, but neither the vendor nor Carling Jones accept responsibility for any errors it may contain. Purchasers or prospective tenants should satisfy themselves by inspecting the property
Viewings
Strictly by appointment through the agents Carling Jones - contact a member of the team at the Skipton Office on 01756 799163
Floorplan

EPC
To discuss this property call:
Market your property
with Carling Jones
Book a market appraisal for your property today. Our virtual options are still available if you prefer.