Description
- Popular Village Location
- Detached Home
- Large Living Room
- Kitchen
- Conservatory
- Three Bedrooms
- Bathroom
- Garden
- Driveway Parking
Nestled in the charming area of Reeval Close, Earby, this delightful detached house presents an excellent opportunity for families and individuals alike. With three well-proportioned bedrooms, this property offers ample space for comfortable living. The inviting reception room serves as a perfect gathering space and, outside, there is a low maintenance garden as well as a private driveway.
Earby is located 8 miles to the west of Skipton. Within the village there is a good range of shops including a supermarket, as well as public houses, church, restaurant and a primary school. The village is surrounded by Pendle open countryside but even though semi-rural, it is ideally situated for commuters to both West Yorkshire and East Lancashire, and there is good access to the central M6 motorway network via the M65 at Colne (5 miles away).
Planned over two floors with gas-fired central heating and UPVC double glazed windows, the accommodation is described in brief below with approximate room sizes:-
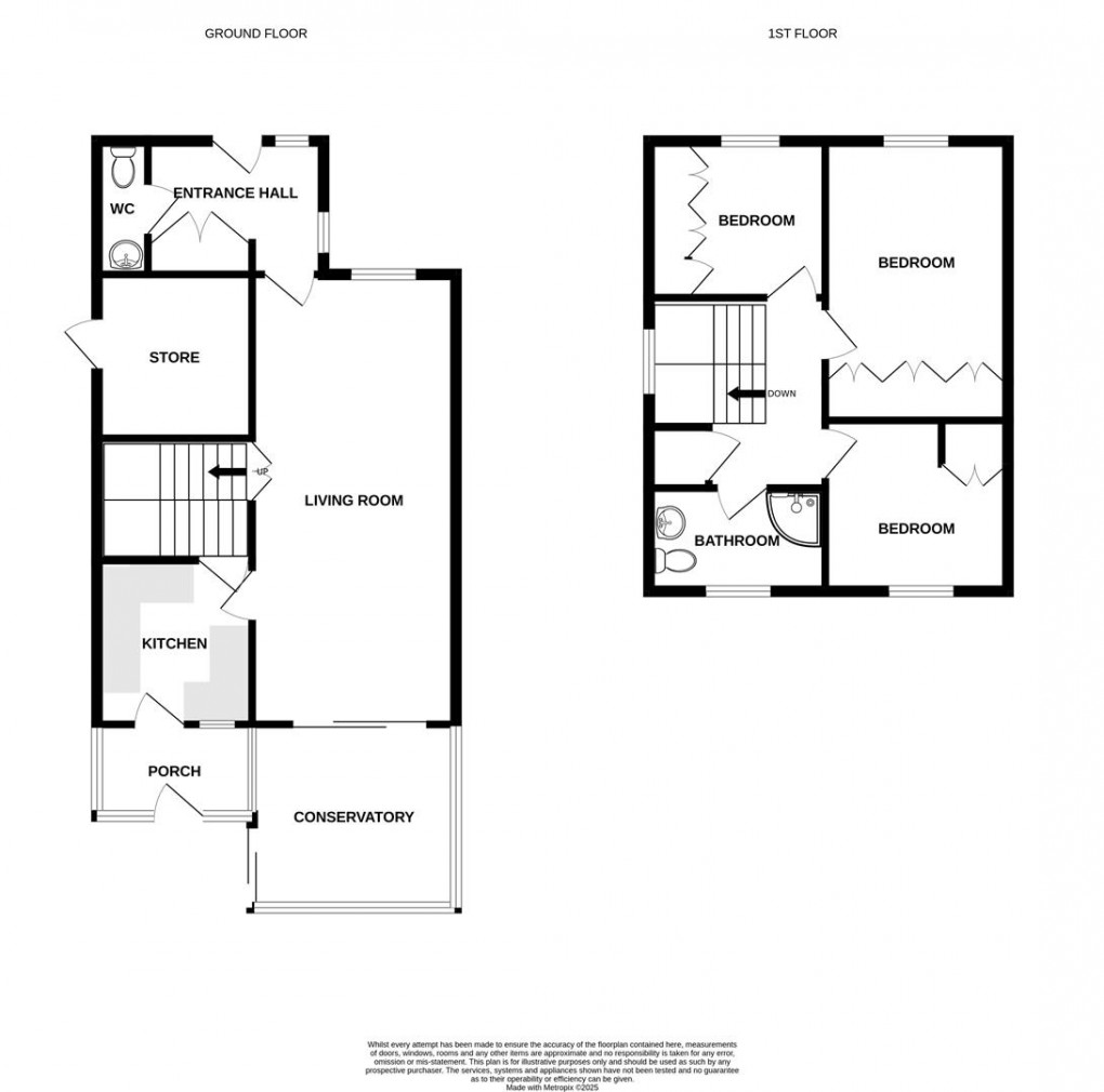
Ground Floor
Entrance Hall
Entered through a UPVC door with useful storage cupboard and radiator.
WC
Two piece suite comprising; low suite wc and hand basin. Extractor fan, Laminate flooring. Radiator.
Living Room (6.99m x 3.18m)
With electric coals effect fire and decorative surround. Two radiators.
Conservatory (2.95m x 2.84m)
Tiled floor and radiator.
Kitchen (2.44m x 1.42m)
Range of wall and base units with laminate worktop, stainless steel sink unit and tiled splashback. Integrated appliances comprising; gas hob, electric oven, dishwasher, under counter fridge and extractor fan. Vinyl flooring. Useful understairs storage. Radiator.
Rear Porch/Utility
Plumbing for washing machine and space for dryer. Tiled flooring.
First Floor
Landing
Access to loft space. Useful storage cupboard. Radiator.
Bedroom One (4.01m x 2.79m)
Double room with built-in wardrobes and drawers. Radiator.
Bedroom Two (2.90m x 2.74m)
Double room with built-in wardrobe. Radiator.
Bedroom Three (2.90m x 2.44m)
Large single room with built-in wardrobes. Radiator.
Bathroom
Three piece suite comprising; low suite wc, hand basin and shower cubicle with thermostatic shower over. Tiled flooring. Chrome heated towel rail. Spotlighting and extractor fan.
Outside
To the front of the property there is a tarmac private driveway with space for two cars.
To the rear of the property there is a two tiered garden with a paved patio area and mature planted flowerbeds.
Council Tax & Tenure
Tenure: Freehold
Council Tax Band: C
Services
We have not been able to test the equipment, services or installations in the property (including heating and hot water systems) and recommend that prospective purchasers arrange for a qualified person to check the relevant installations before entering into any commitment
Agents Note & Disclaimer
These details do not form part of an offer or contract. They are intended to give a fair description of the property, but neither the vendor nor Carling Jones accept responsibility for any errors it may contain. Purchasers or prospective tenants should satisfy themselves by inspecting the property
Anti Money Laundering Regulations
To enable us to comply with the expanded Money Laundering Regulations we are required to obtain proof of how the property purchase is to be financed as well as identification from all prospective buyers. Buyers are asked to please assist with this so that there is no delay in agreeing a sale. The cost payable by the successful buyer(s) for this is £12 (inclusive of VAT) per named buyer and is paid to the firm that administers the money laundering ID checks, Movebutler. Please note the property will not be marked as sold subject to contract until appropriate identification has been provided and all AML checks are completed.
Viewings
Strictly by appointment through the agents Carling Jones - contact a member of the team at the Skipton Office on 01756 799163
Floorplan
EPC
To discuss this property call:
Market your property
with Carling Jones
Book a market appraisal for your property today. Our virtual options are still available if you prefer.
